















Danube Group Headquarters Building – Baghdad.
Description:
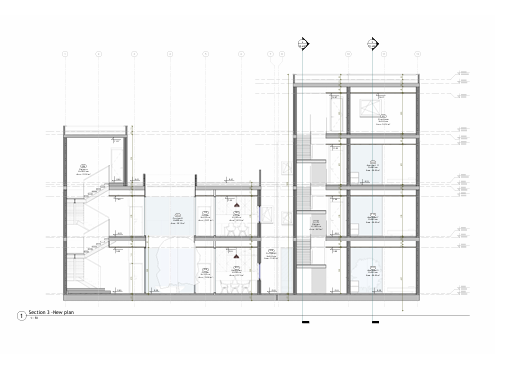
The headquarters building of Danube Group companies is located in the heart of Baghdad, in the Al-Karrada district. The development consists of two buildings, each with an area of approximately 1,000 m². One building is dedicated to administrative and engineering management staff, while the second building provides residential accommodation for key personnel.
The architectural concept reflects traditional Baghdadi heritage, incorporating two defining elements of historic Baghdad design: an internal courtyard that enhances natural ventilation and social interaction, and a brick façade that reflects the city’s characteristic architectural identity.